Vogelzangsekade 2, 3411 BB LOPIK
Algemeen
Markant vrijstaand woonhuis nu te huur! Midden in het dorp van Lopik gelegen, direct bij de voorzieningen. Deze ruime woning ligt op maar liefst 627m2 grond en gesitueerd midden in het groene hart van de Lopikerwaard.
De uitvalswegen zijn goed bereikbaar en via de N210 bereik je snel de omliggende plaatsen. Naast de fijne ligging biedt deze woning je een goede woonkamer, woonkeuken en heb je maar liefst 3 slaapkamers tot je beschikking.
Tevens is er bergzolder aanwezig welke bereikbaar is via een vaste trap. Daarnaast heeft de woning een praktische bijkeuken op de begane grond en compleet sanitair op de 1e verdieping. De woning heeft een woonoppervlakte 120m2.
De ruime tuin ligt rondom de woning en heeft aan de voorzijde parkeergelegenheid voor meerdere auto’s. Tevens is er een aparte stenen berging aanwezig. Het betreft hier een huurwoning voor maximaal 24 maanden. Indien je de woning wenst te bezichtigen verzoeken wij je contact met ons op te nemen, je bent van harte welkom.
Indeling
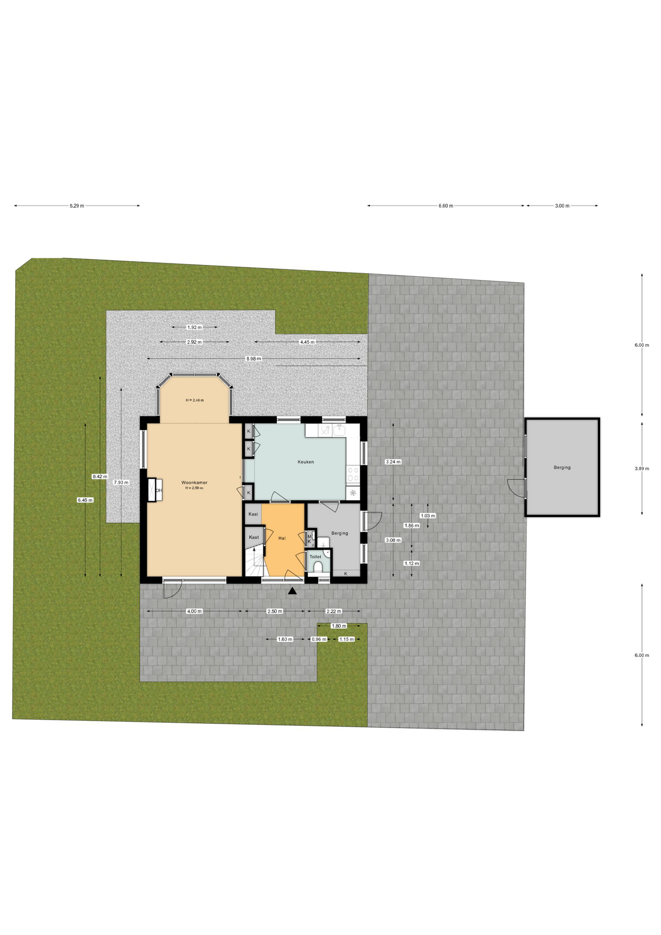
Begane grond:
Entree/hal met toiletruimte, trapopgang, trapkast en toegang naar de keuken.
Ruime keuken voorzien van inbouwkeuken met de volgende apparatuur: inductie kookplaat, afzuigkap, vaatwasser koelkast en combi magnetron. Vanuit de keuken is er toegang naar de bijkeuken welke voorzien is van gootsteen en toegang naar buiten.
De woonkamer is vanuit de keuken bereikbaar en heeft een erker en openhaard. De gehele begane grond is voorzien van een plavuizenvloer met vloerverwarming.
Eerste verdieping:
Overloop met 3 slaapkamers, wasruimte en ruime badkamer. De badkamer is voorzien van wastafelmeubel met dubbele wastafel, ligbad, hangend toilet en douchecabine.
Bergzolder:
De zolder is bereikbaar via een vaste trap. De zolder heeft een stahoogte van 1.62 hoog.
Screening huurder(s):
– ID-check;
– Kredietwaardigheidscheck Focum;
– Kredietwaardigheidscheck EDR;
– Integriteitsverklaring;
– Bewijs van inkomen;
– Verhuurdersverklaring indien van toepassing.
Huurovereenkomst:
– Inkomsten eis van 3x de maand huur (bruto-inkomen) tenzij verhuurder anders bepaald;
– Woningdelers en woongroepen niet toegestaan;
– Waarborgsom 2 x de maand huur;
– Het houden van huisdieren is niet toegestaan tenzij door verhuurder anders bepaald;
– Betreft een huurovereenkomst voor tijdelijke aard/bepaalde tijd met een maximale duur van 24 maanden;
– Huursom van het gehuurde exclusief gebruikerskosten en gemeentelijke heffingen op basis van gebruik;
– Verhuurder houd zich het recht van gunning voor.
**Bezichtiging mogelijk op de door makelaar aangegeven kijkmomenten**







