MAASSINGEL 88, 3404 KJ IJSSELSTEIN
Aan een rustige en populaire straat in Zenderpark ligt deze goed onderhouden en verrassend ruime eengezinswoning! De woning is praktisch ingedeeld, goed geïsoleerd en heeft een moderne afwerking!
De woning biedt een lichte, royale living, een complete luxe inbouwkeuken, drie volwaardige slaapkamers en een moderne badkamer.
Met een eenvoudige aanpassing is het mogelijk om een extra (vierde) slaapkamer te creëren. De onderhoudsarme tuin ligt gunstig en is voorzien van een berging met overkapping en een achterom.
De woning is volledig geïsoleerd en heeft energielabel A. Daarnaast beschikt de woning over maar liefst negen zonnepanelen.
Verwarmingen warm water worden verzorgd via een cv-combiketel en op de begane grond geniet je van vloerverwarming. In totaal beschik je over ca. 115 m² woonoppervlakte.
Voorzieningen zoals scholen, kinderopvang en supermarkt liggen op loopafstand, en het historische centrum van IJsselstein bereik je binnen circa 10 minuten lopen.
Wil jij direct goed en comfortabel wonen? Dan is dit jouw nieuwe thuis aan de Maassingel!
Indeling
Begane grond:
Ruime entree met meterkast en moderne toiletruimte. Vanuit de hal leidt de trap naar de eerste verdieping en via een stijlvolle zwarte deur krijg je toegang tot de living.
Aan de voorzijde van de woning bevindt zich de keukenruimte met moderne inbouwkeuken, circa 7 jaar oud, functioneel ingericht en voorzien van diverse inbouwapparatuur, waaronder een inductiekookplaat, afzuigkap, vaatwasser, magnetron, oven en een koel-/vriescombinatie.
Ook heeft deze keuken veel bergruimte, enorm praktisch!
Aan de achterzijde van de woning tref je de ruime tuingerichte woonkamer. Dankzij de breedte van de woning is er meer dan voldoende ruimte voor zowel een royale eettafel als een comfortabele zithoek.
Via de schuifpui is er directe toegang tot de heerlijke tuin. Daarnaast beschikt de woonkamer over een praktische inbouwkast.
De gehele begane grond is afgewerkt met een mooie pvc vloer met vloerverwarming en glad gestucte wanden en plafonds, wat zorgt voor een strakke en moderne uitstraling.
Tuin:
Deze heerlijke achtertuin is gelegen op het noordwesten, waardoor je optimaal kunt genieten van zowel zon als schaduw.
Een groot voordeel van deze ligging is dat je in de zomer de hele dag van de zon in de tuin kunt genieten, terwijl de zon nooit direct op de achtergevel staat. Dit zorgt ervoor dat het binnen tijdens warme dagen aangenaam koel blijft.
De achtertuin beschikt daarnaast over een berging met overkapping en een achterom. Ideaal om fietsen en tuinspullen netjes uit het zicht op te bergen.
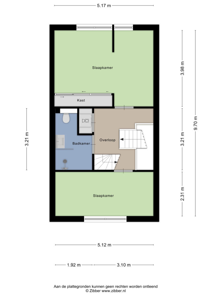
Eerste verdieping:
Op de eerste verdieping bevinden zich momenteel twee ruime slaapkamers. Deze verdieping biedt echter een belangrijk pluspunt: met een eenvoudige aanpassing is hier een derde slaapkamer te realiseren, zoals dit in een eerdere situatie ook het geval is geweest.
Ideaal voor gezinnen, thuiswerkers of voor wie extra flexibiliteit zoekt.
De moderne badkamer, circa 7 jaar oud, is voorzien van een douche, wastafel en een tweede toilet.
Daarnaast bevindt zich op deze verdieping een praktische wasruimte, aansluitend aan de overloop en netjes weggewerkt.
Tweede verdieping:
De tweede verdieping is ingericht als volwaardige zolderverdieping met daglicht en wordt momenteel gebruikt als slaapkamer.
Ook deze ruimte is multifunctioneel inzetbaar, bijvoorbeeld als werk- of hobbykamer.
Bijzonderheden:
• Rustige ligging met alle dagelijkse voorzieningen op loopafstand;
• Volledig geïsoleerd met energielabel A;
• Negen zonnepanelen;
• Vloerverwarming op de begane grond;
• Kamers worden onafhankelijk verwarmd met slimme thermostaatknoppen, ideaal voor thuiswerken;
• Lichte living met schuifpui naar de tuin;
• Ruimte inbouwkast in woonkamer;
• Flexibele indeling; eenvoudig een extra vierde slaapkamer te realiseren;
• Moderne keuken en badkamer;
• Mechanische ventilatie met co2 en vochtsensors uit 2021;
• Rolluiken bij voor- en achterslaapkamer;
• Terras aangelegd in 2022;
• Zonnige achtertuin op het noordwesten;
• Historische centrum van IJsselstein binnen circa 10 minuten lopen;
• Een van de meest populaire straten in de kindvriendelijke wijk Zenderpark!
Interesse in dit huis? Schakel direct uw eigen NVM-aankoopmakelaar in. Uw NVM-aankoopmakelaar komt op voor uw belang en bespaart u tijd, geld en zorgen. Adressen van collega NVM-aankoopmakelaars in IJsselstein en omgeving vindt u op Funda.










