JOHAN WILLEM FRISOLAAN 11, 3401 AX IJSSELSTEIN
Deze moderne en sfeervolle twee-onder-een-kapwoning zoekt nieuwe bewoners.
Gelegen in een rustige straat, op loopafstand van het gezellige centrum van IJsselstein!
De uitgebouwde woonkamer en extra kamer op de begane grond bieden volop mogelijkheden, bijvoorbeeld als werkkamer of speelruimte voor de kinderen.
De lichte woonkamer heeft een erker aan de voorzijde, openslaande deuren naar de zonnige achtertuin en een sfeervolle gashaard. Op de eerste verdieping vind je een ruime overloop en twee grote slaapkamers (voorheen drie).
De moderne badkamer is uitgerust met een inloopdouche, een tweede toilet en een wastafelmeubel. De tweede verdieping biedt nog een ruime slaapkamer met dakkapel.
Aan de voorzijde van de woning bevindt zich een mooie voortuin en parkeergelegenheid op eigen terrein.
De zonnige achtertuin ligt op het zuidwesten, waardoor je de hele dag, tot in de avond, van de zon kunt genieten. Het is een heerlijke plek om te ontspannen!
De tuin is voorzien van twee terrassen, een gazon, diverse bomen, groen- en bloemenborders. Ook is er een garage/schuur en een achterom.
De woning heeft energielabel C en een woonoppervlakte van ca. 110 m². Gelegen aan de rand van de geliefde en bruisende binnenstad van IJsselstein, met scholen, winkels, restaurants en openbaar vervoer op loopafstand!
Zijn jullie de nieuwe bewoners? Neem contact met ons op voor een bezichtiging!
Indeling
Begane grond:
Bij binnenkomst word je verwelkomd in de hal, die toegang biedt tot verschillende ruimtes.
In de hal bevinden zich de meterkast, een toiletruimte met hangend toilet en de trap naar de eerste verdieping.
Vanuit de hal kom je in de sfeervolle woonkamer, die is uitgebouwd. Aan de voorzijde van de woonkamer bevindt zich een erker, terwijl aan de achterzijde openslaande deuren naar de achtertuin leiden.
De woonkamer biedt voldoende ruimte voor zowel een eet- als zitgedeelte. Het zitgedeelte is bovendien voorzien van een gezellige open haard, ideaal voor de wintermaanden – de perfecte plek om lekker met een kopje thee en een dekentje te ontspannen.
De woonkamer staat in verbinding met een extra kamer, die uitstekend dienst kan doen als werkkamer of speelkamer voor de kinderen.
De half open keuken is uitgerust met inbouwapparatuur, waaronder een inductiekookplaat, afzuigkap, vaatwasser, koelkast en combimagnetron. Vanuit de keuken is de achtertuin bereikbaar.
Tuin:
De gezellige voortuin biedt een parkeerplaats. De zonnige achtertuin ligt op het zuidwesten, waardoor je de hele dag, tot in de avond, van de zon kunt genieten.
Het is een ideale plek om te ontspannen! De tuin is voorzien van twee terrassen, een gazon, diverse bomen, groenborders en bloemenborders.
Daarnaast vind je in de achtertuin een ruime schuur/garage van circa 13 m², perfect voor een hobbyruimte of opslag. Ook is er een achterom aanwezig.
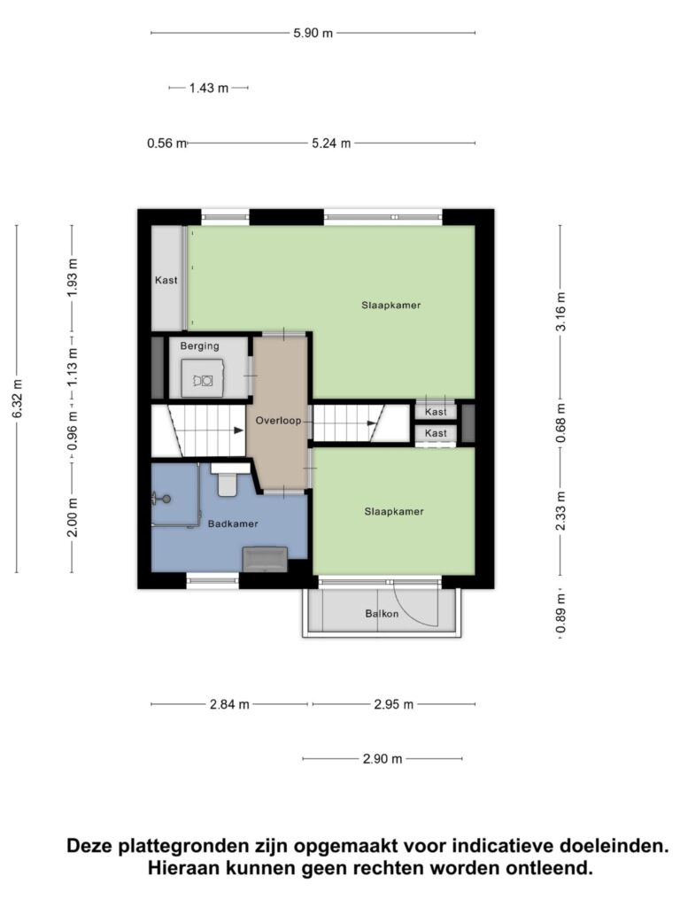
Eerste verdieping:
Op de eerste verdieping vind je twee ruime slaapkamers (voorheen 3). De slaapkamer aan de voorzijde van de woning is ongeveer 7 m² groot en heeft toegang tot een eigen balkon.
De slaapkamer aan de achterzijde is met ca. 17 m² ruim en beschikt over een vaste kast, perfect voor wie van ruimte houdt! De moderne badkamer is voorzien van een inloopdouche, een tweede toilet en een meubelwastafel.
Op de overloop is een inbouwkast met de aansluitingen voor de wasmachine en wasdroger.
Tweede verdieping:
De overloop is voorzien van een dakkapel en inbouwkasten. De ruime derde slaapkamer, eveneens met dakkapel, is ongeveer 11 m² groot.
Daarnaast biedt deze verdieping veel extra opbergruimte, inclusief de opstelling van de cv-installatie.
Bijzonderheden:
• Moderne en sfeervolle twee-onder-een-kapwoning met drie ruime slaapkamers;
• Zonnige tuin op het zuidwesten;
• Eigen oprit met parkeerplaats;
• Uitgebouwde woonkamer met erker en gashaard;
• Openslaande deuren naar de achtertuin;
• Extra kamer op de begane grond, ideaal voor een werkkamer of speelkamer
• Energielabel C, woonoppervlakte ca. 110 m²;
• Gelegen aan de rand van de binnenstad van IJsselstein;
• Scholen, winkels, restaurants en openbaar vervoer op loopafstand!
Interesse in dit huis? Schakel direct je eigen aankoopmakelaar in. Jouw aankoopmakelaar komt op voor jouw belang en bespaart je tijd, geld en zorgen.
Contact gegevens van collega aankoopmakelaars in de omgeving vindt je op o.a. Funda










