BATUWSEWEG 3, 3412 KX LOPIKERKAPEL
Charmant en knus wonen op een heerlijke, landelijke plek!
Aan de Batuwseweg in Lopikerkapel staat dit sfeervolle woonhuis met vrijstaande garage.
Een fijne plek voor wie houdt van rust, ruimte en het dorpse karakter, terwijl voorzieningen in IJsselstein en Lopik en de uitvalswegen richting Utrecht zich op korte afstand bevinden.
Hier combineer je landelijk wonen met een goede bereikbaarheid.
De woning, gebouwd in 1930, ademt karakter en heeft een warme, huiselijke uitstraling. Binnen tref je een lichte woonkamer met keuken, drie slaapkamers en twee badkamers aan.
De vrijstaande garage biedt volop bergruimte en is ideaal voor hobby, opslag of het stallen van fietsen. Daarnaast zorgt de heerlijke tuin voor een fijne plek om buiten te zitten en te genieten.
De woning is voorzien van deels dubbel glas en heeft een betonnen begane grondvloer die geïsoleerd is. De woning heeft Energielabel: G. Verwarming en warmwater worden geregeld via de cv-combiketel.
De woonoppervlakte bedraagt circa 66 m² en een perceeloppervlakte van 115 m². Perfect voor starters die hun eerste stap op de woningmarkt willen zetten en op zoek zijn naar een eigen plek met karakter.
Een huis waar je jouw woonwensen kunt realiseren en echt een thuis van kunt maken.
Ben je op zoek naar een sfeervolle woning op een fijne locatie? Dan is dit jouw kans.
Wij nodigen je van harte uit om de woning zelf te komen ervaren.
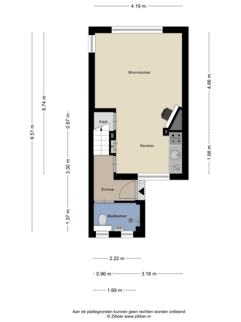
Indeling
Begane grond:
Via de entree kom je binnen in de hal, die toegang biedt tot de badkamer, trap naar de verdieping en de woonkamer.
De woonkamer is aangenaam licht en heeft een gezellige, huiselijke sfeer. Er is voldoende ruimte voor een comfortabele zithoek en een eettafel, waardoor het een fijne plek is om te ontspannen of samen te eten.
De open keuken is eenvoudig van opzet. De eerste badkamer bevindt zich op de begane grond en is praktisch ingedeeld met een douche, wastafel en toilet. Een functionele ruimte die van alle gemakken is voorzien.
Tuin:
De achtertuin ligt direct aan het water, wat zorgt voor een vrij en open gevoel. Vanaf het kleine vlondertje aan de waterkant kijk je uit over het water.
De ligging aan het water geeft de woning net dat beetje extra charme.
De voortuin is onderhoudsvriendelijk aangelegd en volledig bestraat. Dankzij de groene erfafscheidingen en klimplanten voelt deze ruimte beschut en privé aan.
Er is voldoende plek voor een gezellige zithoek waar je in alle rust kunt genieten van het buitenleven.
De vrijstaande garage bevindt zich direct voor de woning en is zowel praktisch als veelzijdig in gebruik. Ideaal voor het stallen van fietsen, motoren, oldtimer of als heerlijk klus schuur te gebruiken.
Ook tref je er nog een ruime bergzolder aan. Een waardevolle extra die zorgt voor veel bergruimte en extra mogelijkheden.
Verdieping:
Op de verdieping bevinden zich drie slaapkamers en de tweede badkamer. De overloop is aangenaam licht door het zijraam.
De slaapkamers zijn efficiënt ingedeeld en te gebruiken als slaap-, werk- of hobbykamer, afhankelijk van jouw woonwensen.
De slaapkamer aan de voorzijde staat in directe verbinding met de tweede badkamer. Deze badkamer is uitgerust met een ligbad, douche, wastafel en toilet. Een comfortabele en praktische indeling waarbij alles binnen handbereik is.
Via de overloop is de bergzolder van de woning te bereiken met een vlizotrap. Je treft hier ook de cv combiketel aan.
Bijzonderheden:
• Charmant en knus woonhuis met karakter;
• Gelegen direct aan het water met een vlonder aan de achterzijde;
• Lichte en sfeervolle woonkamer;
• Drie slaapkamers;
• Twee badkamers (waarvan één op de begane grond);
• Vrijstaande garage;
• Landelijke ligging met goede bereikbaarheid!
Zie jij jezelf hier al wonen?
Laat je begeleiden door je eigen NVM-aankoopmakelaar. Die staat aan jouw kant, denkt vooruit en begeleidt je tijdens het aankoopproces.
Check Funda voor een aankoopmakelaar bij jou in de buurt.










